Rustico in vendita

Landiona, Piazza Vittorio Emanuele
€ 53.000
5 locali 5 locali
206 Mq 206 Mq
2 bagni 2 bagni

Rustico in vendita

Landiona, Piazza Vittorio Emanuele

Descrizione annuncio

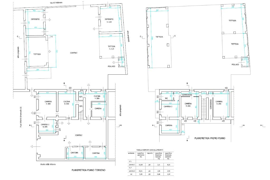
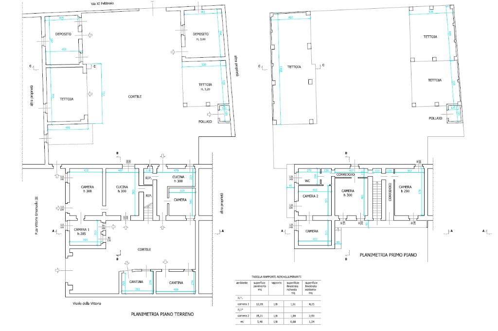
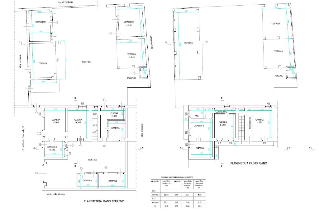
Nel cuore del storico a Landiona, cascinale di 210 mq su due livelli, attualmente in stato originale e ideale per interventi di ristrutturazione mirati. La disposizione degli ambienti permette una chiara separazione tra zona giorno e zona notte, offrendo ampi margini di personalizzazione. La proprietà comprende un cortile privato di 250 mq posto sul retro, che garantisce privacy e consente la realizzazione di spazi esterni funzionali. Sono inoltre presenti un box auto di 30 mq, due tettoie e due depositi, utili come pertinenze o locali di interessante per chi cerca un immobile da valorizzare con ampi spazi e una posizione centrale.

Alcune delle immagini sopra riportate sono inserite a scopo illustrativo, sono puramente indicative e non costituiscono elemento contrattuale.

Mostra tutto

Nelle vicinanze

Ricariche auto elettriche Ricariche auto elettriche
LANDIONA Vittorio Emanuele III | ENELX
40 m
Landiona Via Carpignano | EnelX
140 m
Scuole Scuole
Scuola dell'infanzia statale Don E. Francese
2,6 Km
Scuola Primaria e Secondaria di I grado di Arborio
2,7 Km
Farmacia Farmacia
Farmacia Dr.ssa Casi
170 m
Cosma e Damiano
2,7 Km
Supermercati Supermercati
Minimarket
60 m
Bar Bar
Bar
200 m
La Caffetteria
1,9 Km
Bar La Siesta
2,0 Km
Il Baret
2,6 Km
Ristoranti Ristoranti
Pizzeria
1,9 Km
Paninoteca
1,9 Km
La Cambusa
1,9 Km
Mostra tutto

Caratteristiche

Rif.:
61146625
Piano:
Su più livelli di 2
Totale piani:
2
Box:
1
Posti auto:
1
Balconi:
2
Mostra tutto
Prezzo Prezzo
€ 53.000
Rata mutuo Rata mutuo
€ 252 / mese
Spese annue Spese annue
€ 0
Proponi il tuo prezzoProponi il tuo prezzo

Classe Energetica

Questo immobile è esente da classe energetica
Anno di costruzione:
1900
Riscaldamento:
Autonomo
Tipo impianto:
A radiatori
Tipo alimentazione:
Metano

Ti interessa visionare l'immobile?

Fissa un appuntamento  Fissa un appuntamento

Richiedi informazioni

Clicca su Leggi per aprire l'informativa
* Questi campi sono obbligatori

Calcola il tuo mutuo

Semplice e senza impegno
Anticipo

( % )
Mutuo

( % )

pochi semplici passi

inserisci i tuoi dati
Questionario completato
Grazie per aver richiesto un appuntamento senza impegno con un nostro Consulente del Credito e Assicurativo.

Hai inserito correttamente tutti i dati necessari e a breve riceverai una e-mail con un link da convalidare per inviare i tuoi dati.
Affiliato
Immobiliare Risorgimento Snc
Corso Risorgimento, 25/A 28100 Novara (NO)

Il nostro staff


  • Davide Pangallo
    Affiliato
Corso Risorgimento, 25/A 28100 Novara (NO)
Zona: Novara Zona Nord
Mostra su mappa
Orari: Lunedì-venerdì: 8,30 - 12,30 14,30 - 19,30 Sabato: 8,30 - 12,30 14,30 - 19
Affiliato
Immobiliare Risorgimento Snc
Corso Risorgimento, 25/A 28100 Novara (NO)

2026 Tecnocasa Franchising S.p.A. - P. IVA 08365160152 - Via Monte Bianco 60/A 20089 Rozzano (MI). Ogni agenzia ha un proprio titolare ed è autonoma. Privacy policy | Policy utilizzo | Cookie policy